Escolha abaixo a cidade onde deseja buscar seu imóvel.
Selecione uma Operação
-
Matriz (34) 3256-3000 (34) 99883-3000Center Shopping (34) 3256-3001Vinhedos Corporate (34) 3256-3003Santa Mônica (34) 3256-3004Tem Tem Imbaúbas (34) 3256-3005Araguari/MG (34) 3256-3006Raulino (34) 3256-3000Pátio Vinhedos (34) 3256-3002
-
Sobre nós
-
Imóveis
-
Proprietário
-
Indica Aí !
-
Blog
-
Área do cliente
Casa em condomínio Reserva do Vale para venda
Casa Condomínio ou Loteamento Fechado - Morada da Colina Residencial para Venda em Uberlândia
Terreno de 640 metros
465m² de área construida
4 suítes sendo 1 master com closet
Lavabo
Vestiário
Sauna
Escritório
Sala de TV
Salas amplas
Área gourmet
Cozinha
Área de serviço e banheiro de empregada
Piscina aquecida
Garagem para 3 caminhonetes
Conheça um pouco mais sobre o bairro: Morada da Colina
Casa - Condomínio ou Loteamento Fechado
A casa traz em sua essência a escola arquitetônica moderna remetendo ao futurismo, ficando em evidencia a exclusividade do telhado curvo, as colunas arredondadas em concreto aparente e sua impactante piscina. Segundo Andar: - 4 suítes com closets - Biblioteca/escritório Primeiro Andar: - home cinema; - lavabo; - salas espaçosas; - sala especial em um elemento construtivo que esta metade dentro e metade fora da residência; - elevador; - sala gourmet com churrasqueira; - lavabo gourmet; - ducha; - cozinha com despensa; - Lavanderia; - banheiro de serviço; - estendal; - deque; - piscina com raia de 20mts e hidromassagem - energia fotovoltalica para conta em torno de R$ 1100,00 - aquecimento solar; - boiler pressurizado
Casa - Condomínio ou Loteamento Fechado
CASA RESERVA DO VALE Terreno de 640 metros 465m² de área construida 4 suítes sendo 1 master com closet Lavabo Vestiário Sauna Escritório Sala de TV Salas amplas Área gourmet Cozinha Área de serviço e banheiro de empregada Piscina aquecida Garagem para 3 caminhonetes
Casa - Condomínio ou Loteamento Fechado
Condomínio clube com portaria 24 hs., academia, piscinas, quadras poliesportiva e muita área verde. 4suites sendo 3 no piso superior, living, escada, sala em 2 ambientes e cozinha, lavabo, varanda nas 4 suítes E ao redor da casa, garagem, lavanderia e banheiro externo.
Casa - Condomínio ou Loteamento Fechado
? Casa para Venda no Condomínio Reserva do Vale ? Rua da Carioca ? Uberlândia/MG ? Área construída: 602m² | Terreno: 779m² Residência contemporânea em estilo brutalista com arquitetura assinada ? Características da casa: PAVIMENTO SUPERIOR: ? Hall de entrada ? Sala de estar e jantar integradas ? Cozinha com acesso ao espaço gourmet ? Varanda com ofurô e vista permanente para o Rio Uberabinha ? 2 suítes, sendo 1 com closet e banheiro privativo ? 3 quartos híbridos (atualmente utilizados como escritório, ateliê e sala de acervo) ? 2 banheiros sociais ? Lavabo ? Lavanderia ? Garagem PAVIMENTO INFERIOR: ? Pátio coberto com armários de aço ? Estrutura completa de acessibilidade: elevador e rampa de acesso ? Escada em aço com acabamento de alto padrão DIFERENCIAIS CONSTRUTIVOS: ? Estilo brutalista com concreto aparente ? Esquadrias em alumínio preto com vidro aramado ? Eletrodutos galvanizados à vista ? Ambientes amplos, bem ventilados e com excelente iluminação natural ? Claraboias para luz zenital ? Sistema de aquecimento solar para todas as torneiras e duchas ? Painéis fotovoltaicos (geração própria de energia) ? Irrigação automatizada no jardim ? 100% acessível, conforme normas técnicas brasileiras
Casa - Condomínio ou Loteamento Fechado
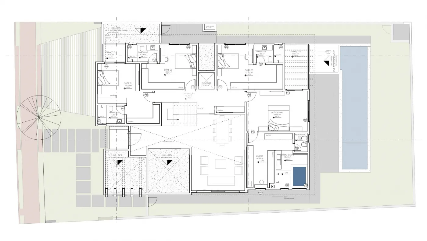
O Presente Memorial Descritivo Especifica A Obra De Edificação Residencial, Construída Na Alameda Garnier, 263, No Loteamento Fechado Jardim Versailles (Quadra 005, Lote 18), No Perímetro Urbano Da Cidade De Uberlândia-MG. PROJETO: A Edificação Contempla 379,22 M2, Em Um Terreno De 622,56M2. PAVIMENTO TÉRREO: O Pavimento É Composto Por Garagem, Cozinha, Sala De Estar Integrada Com Área Gourmet, Lavabo, Cozinha, Duas Suítes, Sauna, Piscina, Lavabo E Jardinagem. PAVIMENTO SUPERIOR: O Pavimento É Composto Por Duas Suítes, Sendo Uma Master Completa, Roupeiro, Uma Varanda Ampla Com Deck De Madeira E Spa Externo. ESQUADRIAS: A Edificação É Toda Fechada Com Esquadrias Gold Na Cor Preta. GARAGEM: A Garagem É Composta Por Piso Barcelona Cristal 120x120 Da Portobello, Parede Frontal Revestida Em Ripado De Alumínio, Guarda Volumes, Porta Em ACM E Fechadura Digital. ÁREA DE SERVIÇO: Montada Em Armários Fabrilis, Piso Barcelona Cristal 120x120 Da Portobello, Bancada Em Quartzo Cinza, Torneira Kohler. COZINHA: Bancada De Quartzo Cinza, Toda Montada Em Armários Fabrilis, Eletrodomésticos (Geladeira, Freezer, Fogão, Forno, Micro-Ondas, Coifa, Lava Louça) Eletromec, Metais Kohler, Louceiro. Piso Barcelona Cristal 120x120 Da Portobello. LAVABO ENTRADA: Piso Barcelona Cristal 120x120 Da Portobello, Lavatório Esculpido Branco Prime, Louça E Metais Kohler, Prateleira Aérea Fabrilis. SALA/GOURMET: Piso Barcelona Cristal 120x120 Da Portobello, Bancada E Ilha Em Quartzo Cinza, Painéis, Portas E Armários Fabrilis, Adega, Cervejeira, Churrasqueira E Coifa Eletromec. Cortinas Automatizadas, Ar-Condicionado Cassete Daikin. Porta De Entrada Em ACM Na Cor Preta Com Fechadura Digital. LAVABO GOURMET: Piso Barcelona Cristal 120x120 Da Portobello, Lavatório Esculpido Branco Prime, Painel Lontano Com Led, Prateleira Aérea, Ambos Fabrilis, Louça E Metais Kohler. JARDIM DE INVERNO: Todo Formado Com Plantas Naturais E Irrigado Automaticamente, Parede De Pedras Madeira Branca, Cortina Automatizada. PISCINA: Revestida Em Barlavento 14,50x14,50 Da Portobello, Deck Em Madeira Cumaru, Sauna E Lavabo. SAUNA: Revestida Em Barlavento 14,50x14,50 Da Portobello. JARDIM: Todo Em Grama Zeon Itograss E Plantas Formadas (Palmeira Carpentaria, Palmeira Pescoço Marrom, Palmeira Areca Bambu, Cyca, Guaimbê, Jasmim Manga, Orelha De Elefante, Rabo De Raposa, Raphis, Sete Copas Africana, Podocarpos, Trianda, Clusia.. ) Com Irrigação Automatizada Rain Bird. SUÍTE 1: Gaveteiros, Painel De Parede, Porta, Bancada, Cabeceira Com Led, Todos Fabrilis, Porta Automática Para Área Externa, Piso Barcelona Cristal 120x120 Da Portobello, Incluindo Banheiro, Ar-Condicionado Daikin. Closet Com Gaveteiros, Cabideiros, Painéis, Prateleira Com Led (Fabrilis). Lavatório Esculpido Branco Prime, Gaveteiros E Basculante Fabrilis, Louças E Metais Kohler. SUÍTE 2: Cabeceira Com Led, Mesa, Guarda-Roupas, Painel, Porta De Passagem Fabrilis, Porta Automática Para Área Externa, Piso Barcelona Cristal 120x120 Da Portobello, Incluindo Banheiro. Ar-Condicionado Daikin. Banheiro Com Gaveteiro Fabrilis, Louça E Metais Kohler, Lavatório Esculpido Branco Prime. CIRCULAÇÃO SUPERIOR: Roupeiro Fabrilis. SUÍTE 3: Painéis, Gaveteiros, Porta De Passagem (Fabrilis), Janela Automática, Piso Barcelona Cristal 120x120 Da Portobello, Incluindo Banheiro. Closet Com Prateleiras Com Led, Cabideiros, Gaveteiros Todos Fabrilis. Ar-Condicionado Daikin. Banheiro Com Gaveteiros Fabrilis, Lavatório Esculpido Branco Prime, Louça E Metais Kohler (Docol). SUÍTE MASTER: Painéis, Cabeceira Com Led, Gaveteiros, Tampo (Fabrilis), Piso Barcelona Cristal 120x120 Da Portobello, Janela E Porta Automáticas. Closet Com Prateleiras Com Iluminação Led, Gaveteiros, Painéis, Porta De Passagem, Ilha Com Gaveteiros E Tampo De Vidro (Fabrilis). Ar-Condicionado Daikin. Banheiro Com Armários Superior Com Espelhos E Inferior Com Portas E Gavetas, Lavatório Duplo Esculpido Em Branco Prime, Louça E Metais Kohler, Banheira De Imersão Jacuzzi. Na Parte Externa Da Suíte Um Amplo Deck De Madeira Cumaru, Spa Com Hidromassagem (Jacuzzi), Jardineiras Irrigadas (Automática).
Casa - Condomínio ou Loteamento Fechado
CASA RESERVA DO VALE 2 Terreno de 640 metros 496m² de área construída 4 suítes Lavabo Vestiário Sauna Escritório Sala de TV Salas amplas Área gourmet Cozinha Área de serviço e banheiro de empregada Piscina aquecida Garagem para 3 caminhonetes Pontos de ar condicionado na sala e quartos
Inglês
Espanhol
Portugues Br
Francês
Italiano